8117 Silver Wings 14, Spring Branch, TX 78070
Property Photos
Would you like to sell your home before you purchase this one?
Priced at Only: $1,300
For more Information Call:
Address: 8117 Silver Wings 14, Spring Branch, TX 78070
Property Location and Similar Properties
- MLS#: 1928636 ( Residential Rental )
- Street Address: 8117 Silver Wings 14
- Viewed: 5
- Price: $1,300
- Price sqft: $0
- Waterfront: No
- Year Built: 2000
- Bldg sqft: 0
- Bedrooms: 3
- Total Baths: 2
- Full Baths: 2
- Days On Market: 11
- Additional Information
- County: COMAL
- City: Spring Branch
- Zipcode: 78070
- Subdivision: Lost Meadows
- District: Comal
- Elementary School: Rebecca Creek
- Middle School: Smiton Valley
- High School: Canyon Lake
- Provided by: Keller Williams Heritage
- Contact: M Fernanda Navarro
- (512) 909-0597

- DMCA Notice
-
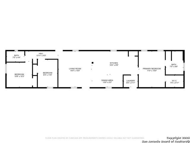
DescriptionFor Lease: Well Maintained Manufactured Home. This nice 3 bedroom, 2 bathroom manufactured home is in great condition and offers a cozy, comfortable living space. The home features a spacious fenced backyard that's perfect for pets, play, or relaxing outdoors. An 8x10 storage shed offers plenty of room for tools, equipment, or seasonal storage. Nestled in a tranquil community surrounded by beautiful oak trees, it's a peaceful setting ideal for those seeking a quiet lifestyle. Enjoy the perfect balance of country style living with the ease of city access. Great Location! Provides quick access to major routes. Just one block off of Hwy. 281, 25 minute drive from downtown San Antonio. You're 15 minutes from HEB, Walmart, retail shopping & a variety of local restaurants. This well cared for home is ready for new tenants to move in. Schedule a private tour or request more information! This rental home will go fast!
Payment Calculator
- Principal & Interest -
- Property Tax $
- Home Insurance $
- HOA Fees $
- Monthly -
Features
Building and Construction
- Apprx Age: 25
- Flooring: Vinyl
School Information
- Elementary School: Rebecca Creek
- High School: Canyon Lake
- Middle School: Smithson Valley
- School District: Comal
Garage and Parking
- Garage Parking: None/Not Applicable
Eco-Communities
- Water/Sewer: Septic, City
Utilities
- Air Conditioning: One Central
- Fireplace: Not Applicable
- Heating: Central
- Window Coverings: All Remain
Amenities
- Common Area Amenities: Near Shopping
Finance and Tax Information
- Application Fee: 39.99
- Pet Deposit: 100
- Security Deposit: 1100
Rental Information
- Tenant Pays: Gas/Electric, Water/Sewer, Garbage Pickup, Other
Other Features
- Application Form: ONLINE
- Apply At: RENTSPREE
- Instdir: If you're coming from San Antonio, head North to 281 to Johnson City. Continue for about 25 miles and turn right into Silverwings. First street on your right. Unit 14 is the first home on your right.
- Interior Features: One Living Area
- Legal Description: 8117 Silverwings Unit 14 Spring Branch, Texas 78070
- Miscellaneous: School Bus
- Occupancy: Vacant
- Personal Checks Accepted: No
- Ph To Show: 512-909-0597
- Restrictions: Smoking Outside Only
- Salerent: For Rent
- Section 8 Qualified: No
- Style: One Story, Manufactured Home - Single Wide
- Unit Number: 14
Owner Information
- Owner Lrealreb: No
Similar Properties
- Brianna Salinas, MRP,REALTOR ®,SFR,SRS
- Premier Realty Group
- Mobile: 210.995.2009
- Mobile: 210.995.2009
- Mobile: 210.995.2009
- realtxrr@gmail.com




























