22216 Park Summit Cv, San Antonio, TX 78258
Property Photos
Would you like to sell your home before you purchase this one?
Priced at Only: $285,000
For more Information Call:
Address: 22216 Park Summit Cv, San Antonio, TX 78258
Property Location and Similar Properties
- MLS#: 1928728 ( Townhome )
- Street Address: 22216 Park Summit Cv
- Viewed: 1
- Price: $285,000
- Price sqft: $162
- Waterfront: No
- Year Built: 2005
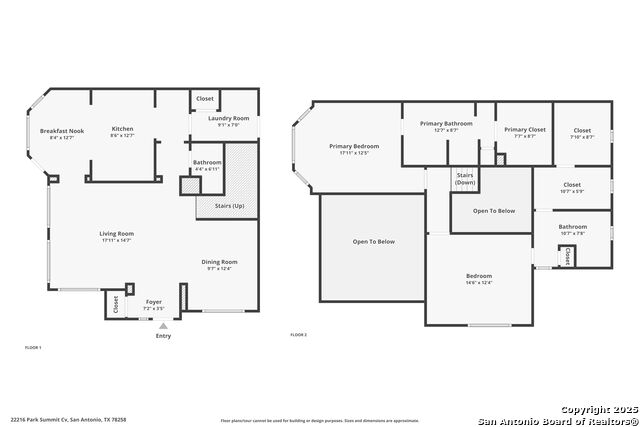
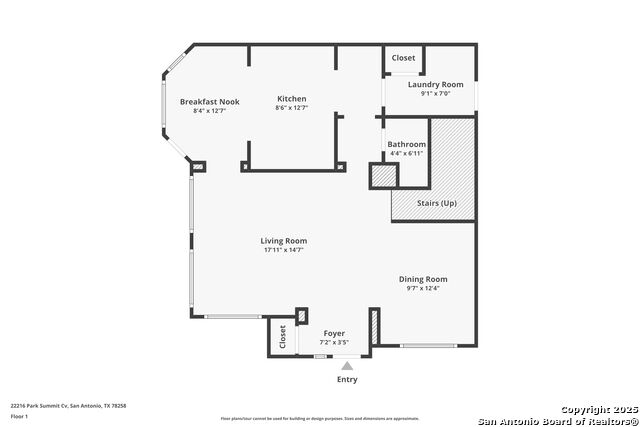
- Bldg sqft: 1758
- Bedrooms: 2
- Total Baths: 3
- Full Baths: 2
- 1/2 Baths: 1
- Garage / Parking Spaces: 1
- Days On Market: 3
- Additional Information
- Geolocation: 46.5786 / -122.72
- County: BEXAR
- City: San Antonio
- Zipcode: 78258
- Subdivision: Champions Village
- District: North East I.S.D.
- Elementary School: Canyon Ridge Elem
- Middle School: Tejeda
- High School: Johnson
- Provided by: Levi Rodgers Real Estate Group
- Contact: Jacob Hernandez
- (210) 772-5066

- DMCA Notice
-
DescriptionWelcome to this beautifully maintained two story townhome located in the private, gated community of Stone Oak. Offering 1,758 square feet of thoughtfully designed living space, this home features a bright open concept layout with fresh interior paint and durable laminate wood flooring throughout the main level. The spacious living and dining areas flow seamlessly, making it ideal for everyday living and entertaining. The functional kitchen provides ample cabinet storage and overlooks the main living space, while a dedicated laundry room and convenient half bath complete the first floor. Upstairs, two generously sized bedrooms each offer plush carpeting and their own full bathroom, delivering comfort, privacy, and flexibility for guests or a home office setup. Step outside to a private, fenced backyard with a small deck perfect for morning coffee, weekend grilling, or winding down in the evenings. Enjoy the highly sought after Stone Oak lifestyle, known for its gated communities, mature landscaping, and proximity to top rated NEISD schools, premier shopping and dining at Stone Oak Parkway, The Rim, and La Cantera, as well as quick access to Loop 1604, US 281, and major employers. Residents appreciate the balance of quiet, secure living with the convenience of nearby parks, trails, medical centers, and entertainment options. Move in ready and meticulously cared for, this townhome offers low maintenance living in one of San Antonio's most desirable areas. Schedule your private showing today! This one won't last long.
Payment Calculator
- Principal & Interest -
- Property Tax $
- Home Insurance $
- HOA Fees $
- Monthly -
Features
Finance and Tax Information
- Possible terms: Conventional, FHA, VA, Cash
Similar Properties
Nearby Subdivisions
- Brianna Salinas, MRP,REALTOR ®,SFR,SRS
- Premier Realty Group
- Mobile: 210.995.2009
- Mobile: 210.995.2009
- Mobile: 210.995.2009
- realtxrr@gmail.com



























